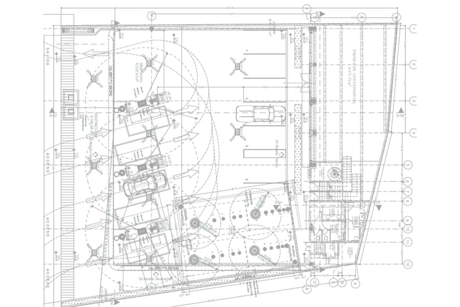
Servicio El Rendidor

Descripción

Ubicado en la Carretera Lago de Guadalupe, Manzana 128, LT 25, Xochimanga, Atizapán de zaragoza, Edo. De México.

Detalles

Otros proyectos

Cumple tus sueños

Cotiza tu proyecto

Otros sectores

Somos profesionales comprometidos en transmitir nuestra experiencia y conocimientos en el desarrollo de proyectos integrales en todos los ámbitos de la arquitectura.

Suscríbete

Recibe nuestras últimas noticias y artículos de interés antes que nadie

Servicios

© 2023 DIEH Arquitectos